Продам: Продам капитальный дом в дачном кооперативе Пингвин. - Купить: Продам капитальный дом в дачном кооперативе Пингвин., Запорожье - Продажа: Дома, дачи, земельные участки продам, куплю Запорожье - 3193324

Найти
 


Объявление

Продам капитальный дом в дачном кооперативе Пингвин. - Дома, дачи, земельные участки продам, куплю

Код: 3193324 Создано: 26-05-2025 16:01

Цена: 12 000 USD $

Продам, предлагаю: Дома, дачи, земельные участки продам, куплю, Украина, Запорожье и область

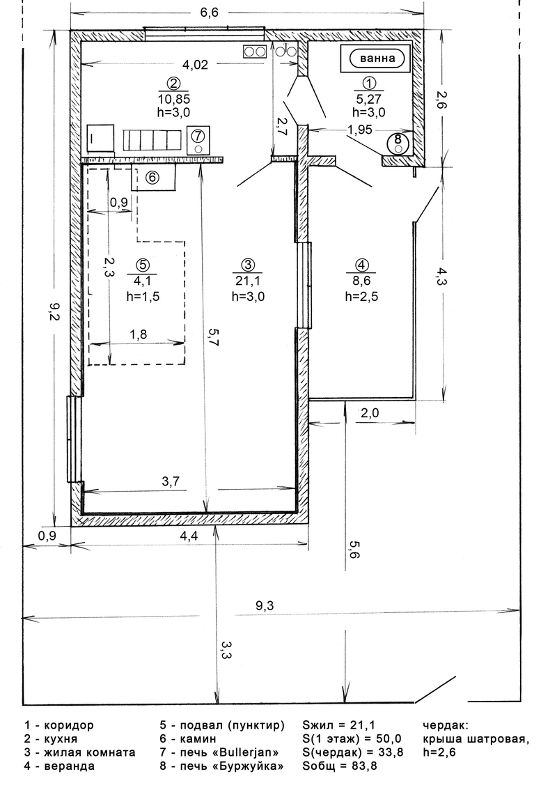
Продам капитальный дом в дачном кооперативе Пингвин., в районе улицы Базовая. От остановки Магистральная 15 минут пешком. Шлакоблок-кирпич. Потолки 3м. Первый этаж- кухня, веранда, предбанник(с ванной и буржуйкой), камин в комнате, печь-булерьян(твердотопливное отопление) на кухне, подвал с вентиляцией(стены, потолок и пол- бетон). Железные ставни. Участок 5 соток. Бассейн(была скважина-замулилась). Вьезд для машины. Хоз/постройки. Сад, виноград. Использовался как жилье. Четыре года никто не проживает. Круглосуточно вода и свет. Продается с мебелью, холодильником, телевизором, газовыми баллонами, садовым инвентарем и т.д. Продажа от собственника.

Реклама
Изображения
Контактные данные
Имя: лена
 
Контактный телефон: 0972926706
 
Задать вопрос владельцу объявления
Email *
 
Повторите e-mail адрес *
 
Контактная информация
Имя:  
Фамилия:  
Контактный телефон:  
Мобильный телефон:  
Ваше сообщение будет отправлено на email адрес владельца объявления.
Ваше сообщение: *







Доска объявлений Украины - AdMir.com.ua



Строительный портал ДивоСтрой Украины - divostroi.com.ua



Наша кнопка:
FREEADS.in.ua

Код кнопки